Die geplanten Renovierungen im Stenkhoffbad waren am Samstag der Anlass für die Grüne Fraktion und den Bezirksvertreter Stadtmitte, sich dort mit Jürgen Heidtmann, Leiter des Bottroper Sport und Bäderbetriebes, vor Ort zu treffen. Der vorrangige und notwendige Bedarf der Investitionen wurde dabei konkret unter die Lupe genommen und bestätigt:
Dachsanierung, Technikraum und Reparatur der Spülluftteilung wurden mit 56T€ eingeplant für 2017, Metalltüren am Technikgebäude und Fensterrenovierung an dem Umkleidegebäude und Fenster/Türen am Schwimmmeistergebäude mit 31T€ für 2018.
Andrea Swoboda markiert die wegfallende Fläche ab den Bäumen bis zum hinteren Bereich
Überschattet wurde der Besuch von den neusten Planungen, die am Donnerstag durch den Straßenbaubetrieb NRW bei einer Bürgerinformationsveranstaltung dargelegt wurden.
Demzufolge wird durch den Ausbau der A31 auch die hintere Liegewiese am Schwimmerbecken um ca. 4 Meter empfindlich verkleinert.
"Da bleibt auf der hinteren Seite nicht mehr viel übrig!", resümieren die GRÜNEN. "Das greift dauerhaft und während der Bauphase sehr empfindlich in die Struktur des Freibades ein zu Lasten der schon jetzt sehr beeinträchtigten Qualität."
Das ums Überleben kämpfende Freibad erhält damit, so die GRÜNEN, in fünf Jahren ab 2021 einen herben Dämpfer – die Zukunft ist somit noch ungewisser.
Vor diesem düsteren Szenario, gehören die von der Verwaltung geplanten Maßnahmen natürlich auf den sachlichen Prüfstand. Doch für die Grünen ist klar: "Das Bad muss auf jeden Fall intakt und verkehrssicher gehalten werden, denn Bottrop braucht ein Freibad - das ist für uns Grüne alternativlos! An den geplanten Summen für 2017 /2018 könnte noch was an dem akuten Bedarf angepasst werden. Aber ohne Investitionen geht es gar nicht dort weiter – und das ist keine Alternative."
Auch Kleingartenverein Eigenhof e.V. in Mitleidenschaft gezogen
Doch der Ausbau zeigt nicht nur gravierende Einschnitte beim Freibad. Auch der angrenzende Kleingartenverein wird nicht verschont. Die Schrebergärten, die an der jetzigen Lärmschutzwand grenzen, könnten dauerhaft der Erweiterung zum Opfer fallen. Wie weit die Einschnitte während der Bauphase sein werden, werde noch ermittelt.

Sigrid Lange und Andrea Swoboda im KGV Eingenhof
Andrea Swoboda, Fraktionsvorsitzende, gibt ein erstes Fazit der Besichtigung:
„Wir Grünen geben uns mit diesen düsteren Aussichten nicht zufrieden! Ob es um das Stenkhoffbad geht, um die Fläche des Kleingartenvereins oder um die Anwohner gerade der Herzogstraße und Umgebung, deren Ansprüche auf neue Lärmschutzmaßnahmen vom Landesbetrieb bisher nicht bestätigt werden. Wir werden versuchen die größtmögliche Hilfe für die Anwohner zu erreichen und den Schaden zu begrenzen!"
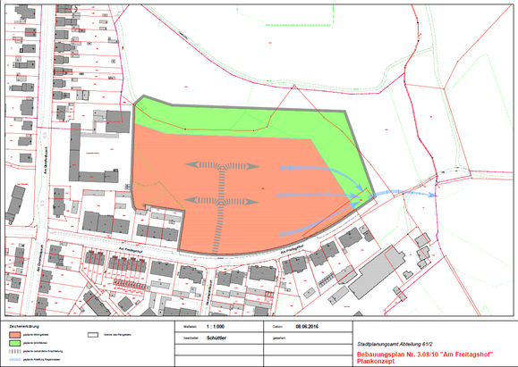
In Vonderort soll gebaut werde. Und zwar am Freitagshof. Dort, wo heute noch eine Grünfläche ist, könnten, wenn es nach dem Wunsch der Eigentümerin (Haus Hove Gesellschaft GmbH & Co KG) geht, in den nächsten Jahren bis zu 110 Wohneinheiten entstehen.
Der derzeitige, aktuelle Planungsentwurf führt beim Bürger allerdings zu Irritationen.
Planungskonzept der Eigentümerin
Denn nur der schematische Planungsentwurf, ohne Anzahl der Wohneinheiten, ohne Nutzungsbestimmung in Ein- oder Mehrfamilienhäuser und ohne Straßenverläufe oder gar Anzahl der Stellplätze, fand den Weg in die politische Abstimmung des Planungsausschusses.
Planungsentwurf der zur Abstimmung fand
"Es ist verwirrend, dass nur das Eigentümerkonzept in den städtischen Vorlagen zu finden ist. Und nicht die Vorlage, die im weiteren die Grundlage des Verfahrens darstellt. Diese hing lediglich bei der Beratung des Planungsausschusses aus und ist bisher nicht der Öffentlichkeit von städtischer Seite vorgelegt worden". Das Konzept der Eigentümerin fand ausdrücklich nicht die Zustimmung des Ausschusses und der Stadtverwaltung.
"Kein Grund zur Entwarnung", urteilen die Grünen, die sehr kritisch auf die Bebauungspläne am Freitagshof schauen, über diesen Schritt. "Das Thema der Bebauung ist damit noch genauso akut."
Das Verfahren sieht nun die Erstellung etlicher Gutachten vor, die sich u.a. mit Verkehr, Umweltschutz und Abwasser beschäftigen. "Sollten diese dann vorliegen, sprechen wir Grünen uns für eine Bürgerversammlung aus. Dann können Fragen auch beantwortet werden. Im Moment ist dies - nach Aussagen der Stadt - nicht möglich."
Grundlage wird aber die schematische Darstellung - nicht das Konzept der Eigentümerin.
Hier finden Sie die Entwürfe zum Download:
Entwurf 1
Entwurf 2
Bis zu 110 Wohneinheiten werden auf der bis jetzt landwirtschaftlichen grünen Wiese am Fuße der Sackgasse Am Freitagshof geplant. Seit Jahren schon im Flächen-nutzungsplan als Wohnbebauung ausgewiesen könnte man meinen, dass die Bebauung zu erwarten war.
Doch angesichts aktueller Verhältnisse in Vonderort überrascht der riesige Umfang an genau dieser Stelle schon sehr. Die Umstände in Vonderort haben sich nach Meinung der GRÜNEN doch so sehr verändert, dass die Empfehlung der Stadtverwaltung „man begrüße die Stärkung des Siedlungsbereiches Vonderort als Wohnstandort“ schon befremdlich wirkt.
Andrea Swoboda und Sigrid Lange lenken den Blick gezielt auf das Umfeld: „Es fehlt hier im Stadtteil Vonderort an wesentlichen Bestandteilen einer lebendigen Infrastruktur. Bis auf eine Bäckerei gibt es hier vor Ort so gut wie nichts. Und auch wenn der Rückzug der Sparkassenfiliale wirtschaftlich nachvollziehbar war, so fehlt diese als Bestandteil eines lebendige Nebenzentrums doch sehr. Die Erschließung der geplanten Fläche schlägt als Zufahrt den Freitagshof vor. Doch diese Straße hat schon jetzt - oft nur als einspurige Straße durch die Parksituation zu nutzen - seine Belastungsgrenzen erreicht. Die aktuellen Baustellen verdeutlichen sehr anschaulich diese Grenzen.“
________________________________________________________________________________________________________________________
Der Einladung der GRÜNEN Ratsfraktion folgte eine engagierte Gruppe aus Kommunalpolitiker*innen, Mitgliedern der Baum- und Grünschutzinitiative und Anwohner*innen der Parkstraße. Eine gemeinsame Begehung mit dem technischen Beigeordneten der Stadt, Klaus Müller, dem Fachbereichsleiter für Umwelt und Grün, Stefan Beckmann, und dem zuständigen Mitarbeiter, Herrn Dahm, machte die Zerstörung des Klimawandels deutlich.
Zum Wohl der Menschen und der Bäume
Die WAZ berichtete am 05. November unter der Schlagzeile „46 Bäume müssen fallen“ vom Bakterienbefall der Kastanienallee an der Parkstraße – Die Grüne Ratsfraktion und der grüne Bezirksvertreter Stadtmitte haken sachlich und kritisch nach
Fazit des stichpunktartigen Dialogs mit Anwohnern und Gästen der Gladbecker Straße zum Erhalt der Mammut-Bäume und der Umbaumaßnahme"Gladbecker Straße sollte auch die Einzigartigkeit des Mammut-Baumbestandes Punkten"Die GRÜNEN haben von Anfang an die Sanierung der Gladbecker Straße und neuen Gastromeile in der Bottroper Innenstadt ausdrücklich befürwortet. „Für uns ist es selbstverständlich kerngesunde Bäume im Zuge einer Sanierung mit einzuplanen. Besonders wenn sie eine Fußgängerzone so einzigartig machen wie die Mammut-Bäume, die dieser Straße einen besonderen Flair und eine wunderbare Aufenthaltsqualität geben“. Auch die anderen Fußgängerzonen müssen vielleicht nicht so grundsaniert aber schon auf ihre Aufenthaltsqualität überprüft werden.
Die GRÜNE Fraktion machte sich unter der Federführung von Andrea Swoboda auf den Weg nach Düsseldorf, um dort für die Anbaupläne der Stadt Bottrop am Quadrat zu werben. Swoboda dazu: „Für uns GRÜNE ist das Chefinnen-Sache!“
Im Zuge der letzten Mitgliederversammlung unterstützten die Mitglieder einstimmig die Initiative der Grünen Ratsfraktion im Verbund mit dem Grünen Bezirksvertreter Stadtmitte für den Erhalt der Mammut-Bäume an der Gladbecker Straße.
Die Grüne Fraktion unterstützte die Wahl des „Innovation-City-Bottropers“ Klaus Müller zum technischen Beigeordneten und knüpft an ihre Entscheidung klare inhaltliche Ziele:
Förderung moderner Mobilität in der Stadt,
innovative Stadtplanung in Zeiten des Klimawandels und
das verbesserte Zusammenspiel von Stadterneuerung und Wirtschaftsförderung.
Die ersten Veranstaltungen mit Herrn Müller sind von Seiten der Grünen Fraktion zum Thema „Klimawandel: Wie wetterfest ist unsere Stadt?!“ schon in Planung mit exemplarischem Blick auf Kirchhellen - Innenstadt - Vonderort.
Markus Kurth, MdB von Bündnis90/Die Grünen, und Andrea Multmeier, Geschäftsführerin des Paritätischen Wohlfahrtsverbandes in Bottrop, waren zu Gast in der Grünen Geschäftsstelle.
Aus aktuellem Anlass drehte sich in der Grünen Geschäftsstelle auf der Osterfelder Straße alles ums Thema „Rente“. Der Grüne Kreisverband hatte zu diesem Thema zwei ausgewiesene Fachleute eingeladen.
Der Klimawandel ist auch in unserer Stadt angekommen. Klimaforscher und Metrologen weisen schon lange daraufhin, dass die ausgiebigen Regenfälle und die lokalen Starkregenereignisse der letzten Wochen keine Ausnahmen darstellen, sondern die Regel werden.
Sigrid Lange, Sprecherin für Stadtplanung und Umweltschutz:“Viele Bürger*innen unserer Stadt haben in den letzten Wochen extreme Probleme bei den Regenfällen gehabt. Bäche, Felder, Wälder und Wiesen stehen unter Wasser. Die Kanalisation der Stadt kann das Wasser nicht fassen. Die Folgen sind bekannt und kann man nun in Grafenwald, in Feldhausen, auch in der Innenstadt sehen. An vielen Punkten unserer Stadt laufen die Keller voll.
Bis zu 110 Wohneinheiten werden auf der bis jetzt landwirtschaftlichen grünen Wiese am Fuße der Sackgasse Am Freitagshof geplant. Seit Jahren schon im Flächen-nutzungsplan als Wohnbebauung ausgewiesen könnte man meinen, dass die Bebauung zu erwarten war.
Doch angesichts aktueller Verhältnisse in Vonderort überrascht der riesige Umfang an genau dieser Stelle schon sehr. Die Umstände in Vonderort haben sich nach Meinung der GRÜNEN doch so sehr verändert, dass die Empfehlung der Stadtverwaltung „man begrüße die Stärkung des Siedlungsbereiches Vonderort als Wohnstandort“ schon befremdlich wirkt.
Andrea Swoboda und Sigrid Lange lenken den Blick gezielt auf das Umfeld: „Es fehlt hier im Stadtteil Vonderort an wesentlichen Bestandteilen einer lebendigen Infrastruktur. Bis auf eine Bäckerei gibt es hier vor Ort so gut wie nichts. Und auch wenn der Rückzug der Sparkassenfiliale wirtschaftlich nachvollziehbar war, so fehlt diese als Bestandteil eines lebendige Nebenzentrums doch sehr. Die Erschließung der geplanten Fläche schlägt als Zufahrt den Freitagshof vor. Doch diese Straße hat schon jetzt - oft nur als einspurige Straße durch die Parksituation zu nutzen - seine Belastungsgrenzen erreicht. Die aktuellen Baustellen verdeutlichen sehr anschaulich diese Grenzen.“
________________________________________________________________________________________________________________________
Im Schatten der Zeche sehr gut aufgehoben.
"Auch in diesem Jahr treten wir Grünen ein für ein besseres Klima in unserer Stadt.
Ab dem 21. Mai 2016 bis 11. Juni 2016 machen wir zusammen mit vielen anderen Radler*innen deutlich, dass Klimaschutz in Bottrop viele Gesichter hat: Verkehrsplanung, Stadtplanung und Gesundheitsschutz sind Facetten einer Medaille - einer lebenswerten Stadt.
Machen Sie / mach Du mit! Das Grüne Team ist offen für Radler*innen.
Am 18.Mai 2016 folgten Fachleute der Einladung zur Diskussion um den Bericht zur Bottroper Sportentwicklung. Als Gäste konnten die GRÜNEN Jürgen Heidtmann als Leiter des Sport- und Bäderbetriebes und Dr. Peter Scheidgen als 1. Vorsitzende des Bottroper Sport Bundes gewinnen. Dazu kamen Vertreter*innen gerade der Kirchhellner Sportvereine auch aus Feldhausen.
Durch die Diskussion leitete Andrea Swoboda, Fraktionsvorsitzende, die an ihrer Seite u.a. den sportpolitischen Sprecher Sigurd Köllner und die Bezirksvertreterin und Ratsfrau für Kirchhellen Sigrid Lange hatte.
SPD und CDU Regierungskoalition verhindert Fracking-Verbot – „Bottroper Bundestagsabgeordnete bescheren Innovation City damit ein Armutszeugnis“
Zur namentlichen Abstimmung über den grünen Gesetzentwurf für ein Fracking-Verbot im Bundestag am letzten Donnerstag erklären Joachim Gutsche, Sprecher der Grünen Partei, und Andrea Swoboda, Fraktionsvorsitzende:
„Durch Ablehnung unseres Grünen Gesetzentwurfs haben Herr Michael Gerdes von der SPD sowie Herr Sven Vollmering von der CDU ihre Chance vertan, den Einsatz von Fracking für Erdgas- und Erdölförderung in Deutschland zu verhindern."
- Ratsfraktion -
"Aus der Ankündigung wurde bittere Realität" So resümiert die Bottroper Ratsfraktion die Entscheidung des RWE-Vorstands, im Jahr 2016 die Dividende zu streichen
Der Grüne Antrag aus der Haushaltsberatung 2016 erlangt im Februar brisante Aktualität
Städte wie Bottrop müssen nun die Managementfehler des RWE-Konzerns ausbaden
„RWE hat viel zu spät auf die Energiewende reagiert: Kommunen hielten dem RWE trotzdem die Treue und werden nun doppelt dafür bestraft“
Es erweist sich als grober Fehler, dass sich die Ratsfraktionen von SPD und CDU in der Vergangenheit regelmäßig gegen Vorschläge der Grünen u.a. zum Verkauf einzelner RWE-Aktienpakete ausgesprochen haben. Die Frage nach dem richtigen Zeitpunkt des Verkaufs von RWE-Aktien stellte sich dabei immer dringender. Grüne:"Der richtige Zeitpunkt wurde von SPD und CDU absolut verpasst!"
Im Zuge der Haushaltsberatung für 2016 hatte die Grüne Ratsfraktion einen Prüfauftrag zum weiteren Umgang mit den RWE-Aktien beantragt, der nun im Hauptausschuss beraten wurde. Angesichts der Streichung der Dividendenausschüttung erlangt der Antrag hohe Brisanz.
Swoboda: "Ziel sollte es natürlich sein, dass die Bottroper Stadtverwaltung mit den anderen kommunalen Anteilseignern Einfluss nimmt, dass bei der RWE-Hauptversammlung im April auf eine Änderung des Beschlusses zur Dividenden-Streichung hingewirkt wird. Das ging gehörig daneben!
Es ist völlig inakzeptabel, wie der RWE-Vorstand mit seinen Anteilseignern umgeht“, so Swoboda.
JA zu einem modernen Mobilitätskonzept - Ratsfraktion -
Sigrid Lange, Sprecherin für Stadtplanung und Umweltschutz, und Roger Köllner, Sprecher für Bau und Verkehr, informieren und helfen beim Schreiben von Widersprüchen im Grünen Büro am Montag, dem 25.04.2016 zwischen 16.00 und 18.00 Uhr, und am Donnerstag, dem 27.04.2016, zwischen 10.00 und 12.00 Uhr - Gemeinsam bei Kaffee und Kuchen.
Die Bottroper Grünen wählten turnusmäßig auf ihrer Mitgliederversammlung einen neuen Vorstand.
Joachim Gutsche (52 Jahre) wurde als Sprecher der Grünen Partei in Bottrop gewählt. In der örtlichen Politik und Musikszene kein unbekanntes Gesicht, fand er seit der letzten Kommunalwahl seine politische Heimat bei den Bottroper Grünen. Seit dieser Zeit unterstützt er die GRÜNEN mit Rat und Tat im Kultur- und Schulausschuss. Als Imker betreut er seit knapp einem Jahr das Projekt „Grüne Bienen“ für den Bottroper Kreisverband. „Für mich wird Teamgeist und Zusammenhalt in der Partei ganz groß geschrieben“ betont der Sprecher. – „GRÜNE ziehen in Bottrop an einem Strang.“
"Die Zukunft des Saalbaus und der Fläche sollte ergebnisoffen alle guten Ideen im Investorenauswahlverfahren berücksichtigen könne."
Vor diesem Hintergrund erteilte die GRÜNE Fraktion der Vorlage der Stadtverwaltung in der Ratssitzung am 01.03.2016 eine Absage. Ratsfrau Sigrid Lange betonte im Stadtrat, dass eine Beschneidung der Fläche und des Saalbaus diesem ergebnisoffenen Ansatzes im Wege ste
ht.
Andrea Swoboda, Fraktionsvorsitzende und wirtschaftspolitische Sprecherin, und Sigrid Lange, Sprecherin für Stadtplanung, war es zusammen mit dem Bezirksvertreter Stadtmitte, Stefan Voßschmidt, in der Diskussion immer wichtig, dass die Ausschreibungskriterien für den Investorenwettbewerb eine möglichst breite Teilnahme auch alternativer Modelle zulasst.
Das Engagement und die Teilnahme z.B. des Vereins amBOTioniert kann so ebenfalls möglich sein.
Am Freitag den 15.01.16 informierten sich die Bottroper Grünen und interessierte Bottroperinnen und Bottroper über wichtige Aspekte der Flüchtlingssituation in Europa.
Wie die WAZ berichtete haben Konstatin Lobert (Sprecher Grüne Jugend Bottrop) und seine Freunde in ihrem Urlaub ihr Möglichstes getan um im „Jungle von Calais“ genannten Camp mit 8000 Flüchtlingen zu helfen. Einer von ihnen, selbst ein Flüchtling, übernahm die Dolmetscherrolle. Das Camp sollte am darauffolgenden Wochenende geräumt werden.
Wir befinden uns mitten im größten Angriff auf Klimaschutz und Ökologie, den jemals eine deutsche Bundesregierung gestartet hat. Die Koalition [...]
Vom 29. Bis 30. Mai kommen wir zum IM/PULS – Forum für Zukunft im smartvillage Berlin zusammen. Gemeinsam wollen wir die zentralen Fragen [...]
Am 22. März 2026 wählt Rheinland-Pfalz einen neuen Landtag. Für uns ist klar: Wir schützen, was uns schützt. Nur GRÜNE sorgen für eine für alle [...]